2 poze

Ansamblul rezidențial MAGNOLIA DREAM 2

Vezi harta si trafic
Adresa

Str. ****** ***

Dezvoltator
PF*** ** *****
Ultima actualizare: 14/04/2022
Complex pe harta
Caracteristici
Despre complex
Etape de dezvoltare
Verifica profil dezvoltator
Alte ansambluri pe harta
Recenzii Nou!

Complex pe harta

Vezi

Harta si Trafic

Caracteristici ansamblu

Despre Complex

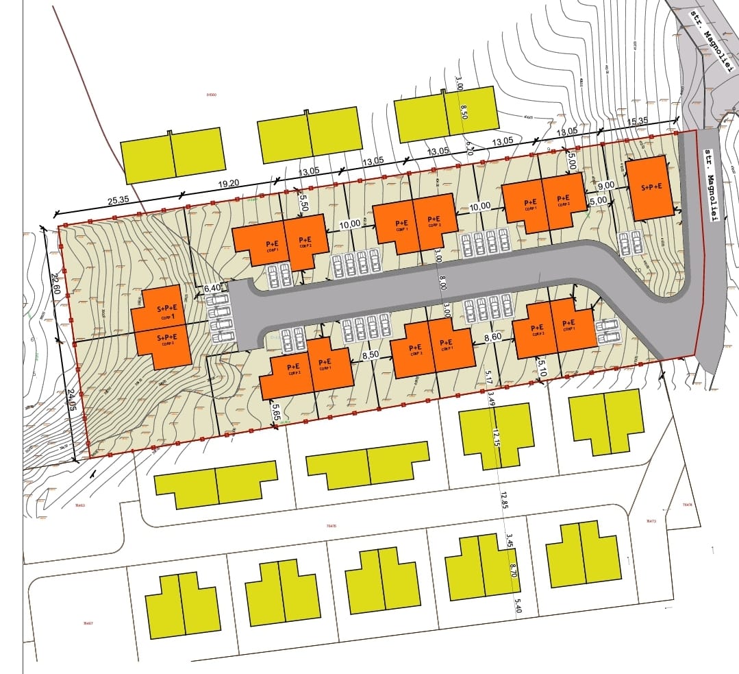
Ansamblul rezidențial MAGNOLIA DREAM 2. Panorama spre Padure, calitate, accesibilitate, liniste, siguranta, compartimentare inteligenta, zona verde. Sunt aceste aspecte importante pentru tine in cautarea noii tale locuinte? Daca da, AI GASIT-O! Amplasat in imediata apropiere a centurii de sud Floresti, retras de la agitatia arterelor principale dar foarte usor accesibil, ansamblul Magnolia Dream 2 este locul caruia ii vei spune cu drag ACASA! Ansamblul rezidential se intinde pe o suprafata de 5775 mp si este ocupat de 15 spatii locative care ocupa o suprafata de 16% din suprafata terenului. El contine 10 duplexuri si o casa individuala, fiecare dintre acestea avand o suprafata utila de 120 mp utili si 2 locuri de parcare. Ansamblul este localizat pe strada Magnoliei nr.23, in imediata apropiere de parcul central Floresti, magazine, mijloace de transport in comun si alte puncte de interes. (VIVO - 6 minute cu mașina) Imobillele sunt edificate cu materiale de calitate inalta, atent selectate pentru a oferii un rezultat optim atat in materie de comfort cat si in materie de eficienta energetica. La nivel de compartimentari, suntem bucurosi sa te anuntam ca am reusit sa maximizam nivelul de spatii utile obtinand astfel un living cu bucatarie foarte generos, 4 dormitoare, 3 bai si 2 balcoane. Imobilele au fost gandite atat din perspectiva unei familii tinere cu sau fara copii cat si din perspectiva unui cuplu in varsta. Idiferent din ce perspectiva privesti, ansamblul Magnolia Dream 2 este alegerea perfecta !

Etape de dezvoltare

Etapa dezvoltare

Recenzii

Descopera parerile utilizatorilor despre acest ansamblu!

Vezi detalii

Verifica Profil dezvoltator

Vezi ce proiecte a mai realizat

Afla indicatorii financiari

Vechimea in piata si firme conexe

Alte ansambluri din Cluj-Napoca pe harta

Recomandate
Recomandat
Sold out!

3 duplexuri P+1E+1Er

Str. **** ***
SI****** **
Recomandat
Sold out!

Complex Avella

Str. **** ***
He******* **********
Recomandat